Камины Очаг — когда деньги не вылетают в трубу!

Каминная топка Romotop Heat R/L 3G L 81.51.40.21

74f1a422b368
Доставка в Санкт-Петербург
Удобство оплаты
Почему звонить в Очаг уже сейчас?
  • Единая цена по всей России
  • Бесплатная доставка
  • Понимаем любой бюджет
  • Считаем ВСЕ варианты
  • Инструкции и видео для Монтажа
  • Доступно, Оперативно, Профессионально
  • Более 2 000 монтажей за 17 лет

Примеры работ     #Степан_Знает

Описание
Характеристики

Общие

Производитель:
Страна-производитель:
Чехия
Гарантия
:
5 лет
Остекление:
Материал корпуса:
Материал топки:
  • Вермикулит
Конструкция топки:
Стекло с подъемом вверх:
Да

Размеры

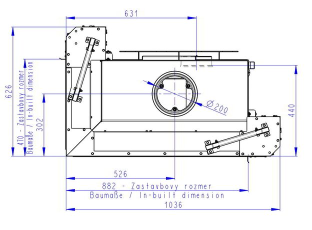
Диаметр дымохода:
200 мм
Общая ширина:
1036 мм
Общая глубина:
626 мм
Общая высота:
1357 мм
Общий вес:
260 кг
Высота рамки:
470 мм
Ширина рамки:
810 мм

Производительность

Мощность:
10,8 кВт
КПД:
83,2%
Площадь отопления:
110 м²
Объем отопления:
275 м³
Использование для отопления:

Особенности

Водяной контур:
Нет
Подвод внешнего воздуха:
Дожиг газов:
Подача воздуха на стекло:
Да
Зольный ящик:
Нет
Шибер:
Нет
Подъем стекла вверх:
За те же деньги