Камины Очаг — когда деньги не вылетают в трубу!

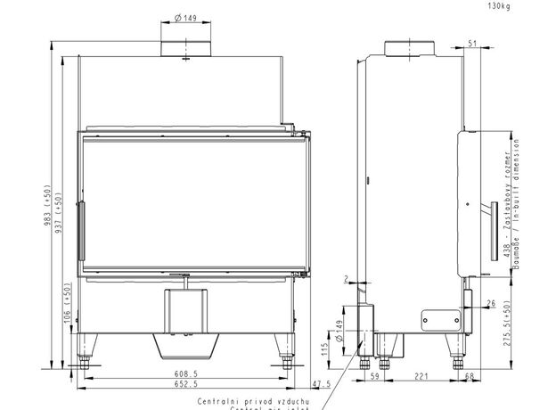
Каминная топка Romotop Heat R/L 2G S 70.44.33.23

7c28f1adcbd4
Доставка в Санкт-Петербург
Удобство оплаты
Почему звонить в Очаг уже сейчас?
  • Единая цена по всей России
  • Бесплатная доставка
  • Понимаем любой бюджет
  • Считаем ВСЕ варианты
  • Инструкции и видео для Монтажа
  • Доступно, Оперативно, Профессионально
  • Более 2 000 монтажей за 17 лет

Примеры работ     #Степан_Знает

Описание
Характеристики

Общие

Производитель:
Страна-производитель:
Чехия
Гарантия
:
5 лет
Остекление:
Материал корпуса:
Материал топки:
  • Вермикулит
Конструкция топки:

Размеры

Диаметр дымохода:
150 мм
Общая ширина:
700 мм
Общая глубина:
375 мм
Общая высота:
983 мм
Общий вес:
130 кг
Высота рамки:
407 мм
Ширина рамки:
677 мм

Производительность

Мощность:
6,3 кВт
КПД:
86,6%
Площадь отопления:
70 м²
Объем отопления:
175 м³
Использование для отопления:

Особенности

Водяной контур:
Нет
Подвод внешнего воздуха:
Дожиг газов:
Подача воздуха на стекло:
Да
Зольный ящик:
Нет
Шибер:
Нет
Подъем стекла вверх:
За те же деньги