Камины Очаг — когда деньги не вылетают в трубу!

Каминная топка Romotop Heat 2G 70.50.01

681887d49e7a
Доставка в Санкт-Петербург
Удобство оплаты
Почему звонить в Очаг уже сейчас?
  • Единая цена по всей России
  • Бесплатная доставка
  • Понимаем любой бюджет
  • Считаем ВСЕ варианты
  • Инструкции и видео для Монтажа
  • Доступно, Оперативно, Профессионально
  • Более 2 000 монтажей за 17 лет

Примеры работ     #Степан_Знает

Описание
Характеристики

Общие

Производитель:
Страна-производитель:
Чехия
Гарантия
:
5 лет
Остекление:
Материал корпуса:
Материал топки:
  • Вермикулит
Конструкция топки:

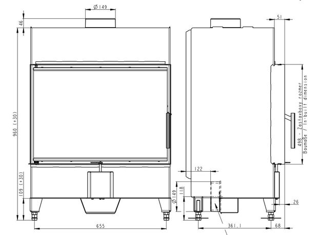
Размеры

Диаметр дымохода:
150 мм
Общая ширина:
699 мм
Общая глубина:
490 мм
Общая высота:
964 мм
Общий вес:
170 кг
Высота рамки:
467 мм
Ширина рамки:
664 мм

Производительность

Мощность:
8,1 кВт
КПД:
80,3%
Площадь отопления:
90 м²
Объем отопления:
225 м³
Использование для отопления:

Особенности

Водяной контур:
Нет
Подвод внешнего воздуха:
Дожиг газов:
Подача воздуха на стекло:
Да
Зольный ящик:
Нет
Шибер:
Нет
Подъем стекла вверх:
За те же деньги