Камины Очаг — когда деньги не вылетают в трубу!

Каминная топка Lacunza Adour 500

08b55bc6171c
В наличии
201 256 
ПроизводительLacunza Страна-производительИспания Мощность5,5 кВт
Доставка в Санкт-Петербург
Удобство оплаты
Почему звонить в Очаг уже сейчас?
  • Единая цена по всей России
  • Бесплатная доставка
  • Понимаем любой бюджет
  • Считаем ВСЕ варианты
  • Инструкции и видео для Монтажа
  • Доступно, Оперативно, Профессионально
  • Более 2 000 монтажей за 17 лет

Примеры работ     #Степан_Знает

Характеристики

Общие

Производитель:
Страна-производитель:
Испания
Гарантия
:
5 лет
Остекление:
Материал корпуса:
Материал топки:
  • Вермикулит
Конструкция топки:
Боковое стекло:
Нет

Размеры

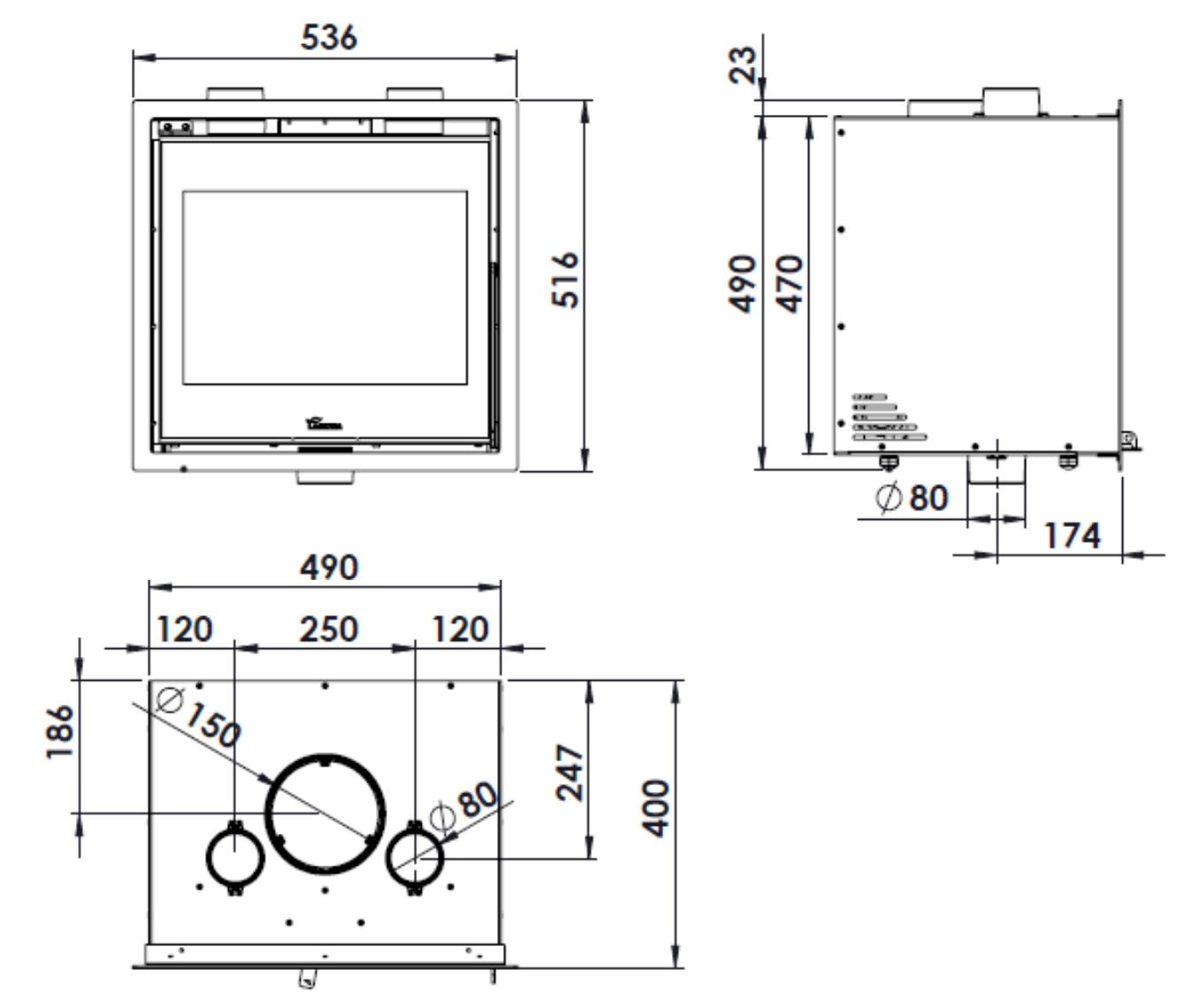
Диаметр дымохода:
150 мм
Общая ширина:
490 мм
Общая глубина:
400 мм
Общая высота:
490 мм
Общий вес:
65 кг
Высота рамки:
235 мм
Ширина рамки:
404 мм

Производительность

Мощность:
5,5 кВт
КПД:
77%
Площадь отопления:
60 м²
Объем отопления:
150 м³
Использование для отопления:

Особенности

Водяной контур:
Нет
Подвод внешнего воздуха:
Дожиг газов:
Подача воздуха на стекло:
Да
Зольный ящик:
Да
Шибер:
Нет
Подъем стекла вверх:
За те же деньги