Камины Очаг — когда деньги не вылетают в трубу!

Каминная топка EcoKamin Вега 1200

85d6e5491cc4
Доставка в Санкт-Петербург
Удобство оплаты
Почему звонить в Очаг уже сейчас?
  • Единая цена по всей России
  • Бесплатная доставка
  • Понимаем любой бюджет
  • Считаем ВСЕ варианты
  • Инструкции и видео для Монтажа
  • Доступно, Оперативно, Профессионально
  • Более 2 000 монтажей за 17 лет

Примеры работ     #Степан_Знает

Описание
Характеристики

Общие

Производитель:
Страна-производитель:
Россия
Гарантия
:
3 года
Остекление:
Материал корпуса:
Материал топки:
  • Шамот
Конструкция топки:

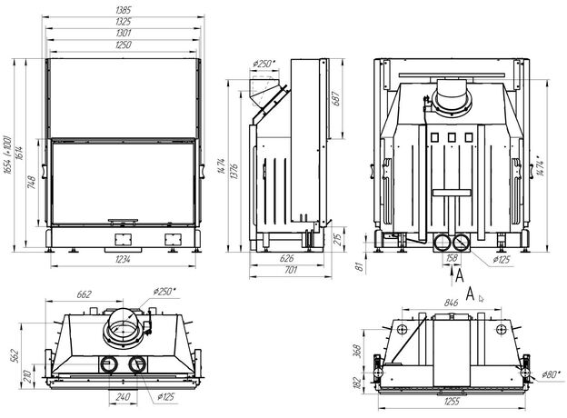
Размеры

Диаметр дымохода:
250 мм
Общая ширина:
1365 мм
Общая глубина:
715 мм
Общая высота:
1565 мм
Общий вес:
488 кг
Высота рамки:
700 мм
Ширина рамки:
1200 мм

Производительность

Мощность:
18 кВт
КПД:
80%
Площадь отопления:
180 м²
Объем отопления:
450 м³
Использование для отопления:

Особенности

Водяной контур:
Нет
Подвод внешнего воздуха:
Дожиг газов:
Подача воздуха на стекло:
Да
Зольный ящик:
Нет
Шибер:
Нет
Подъем стекла вверх:
За те же деньги