Камины Очаг — когда деньги не вылетают в трубу!

Открытая каминная топка Астов Astov с сеткой О2С 90\50

70cf8931a6db
Скидка 20%
В наличии
708 750 
567 000 
Вы экономите: 141 750 ₽ (20%)
ПроизводительAstov Страна-производительРоссия
Доставка в Санкт-Петербург
Удобство оплаты
Почему звонить в Очаг уже сейчас?
  • Единая цена по всей России
  • Бесплатная доставка
  • Понимаем любой бюджет
  • Считаем ВСЕ варианты
  • Инструкции и видео для Монтажа
  • Доступно, Оперативно, Профессионально
  • Более 2 000 монтажей за 17 лет

Примеры работ     #Степан_Знает

Характеристики

Общие

Производитель:
Страна-производитель:
Россия
Гарантия
:
5 лет
Остекление:
Открытая топка
Материал корпуса:
Материал топки:
  • Шамот
Конструкция топки:
Стекло с подъемом вверх:
Да
Боковое стекло:
Справа

Размеры

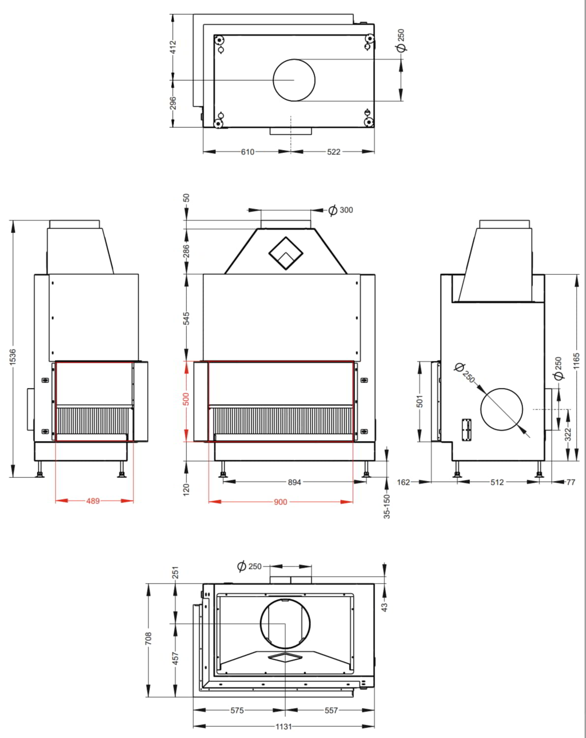
Диаметр дымохода:
300 мм
Общая ширина:
1131 мм
Общая глубина:
751 мм
Общая высота:
1536 мм
Высота рамки:
500 мм
Ширина рамки:
900 мм

Производительность

Использование для отопления:

Особенности

Водяной контур:
Нет
Подвод внешнего воздуха:
Дожиг газов:
Нет
Подача воздуха на стекло:
Нет
Зольный ящик:
Нет
Шибер:
Да
Подъем стекла вверх:
За те же деньги